












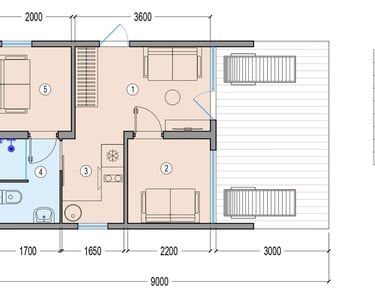
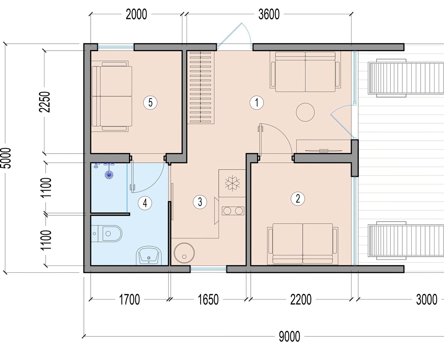
ACABADO COMPLETO
Trabajos de tierra bajo los cimientos
Cimientos (de pilotes o de losa)
Instalaciones completamente distribuidas en los cimientos
Paredes con aislamiento y acabado exterior (paneles compuestos, revestimiento de madera)
Estructura del techo (de chapa, de pizarra sin asbesto o tejas bituminosas)
Ventanas y puertas exteriores
Tabiques instalados y techos de yeso
Instalaciones completamente distribuidas en toda la casa
Bomba de calor instalada
Puertas interiores y alféizares instalados
Paredes y techos interiores de la casa pintados
Laminado especial para suelos calefactados colocado
Azulejos instalados en la cocina y áreas sanitarias
Lámparas, enchufes y interruptores instalados
Aparatos sanitarios instalados
PLAZO DE CONSTRUCCIÓN: DURACIÓN INDIVIDUALIZADA
ACABADO PARCIAL
Trabajos de tierra bajo los cimientos
Cimientos (prefabricados, de pilotes, de tiras o de losa)
Instalaciones completamente distribuidas en los cimientos
Paredes con aislamiento y acabado exterior (paneles compuestos, revestimiento de madera)
Estructura del techo (de chapa, de pizarra sin asbesto o tejas bituminosas)
Ventanas y puertas exteriores
Tabiques instalados y techos de yeso
Instalaciones completamente distribuidas en toda la casa
PLAZO DE CONSTRUCCIÓN: HASTA 3 MESES
CAJA DE LA CASA
Trabajos de tierra bajo los cimientos
Cimientos (prefabricados o de pilotes)Instalaciones completamente distribuidas en los cimientos
Paredes con aislamiento y acabado exterior (paneles compuestos, revestimiento de madera)
Estructura del techo (de chapa, de pizarra sin asbesto o tejas bituminosas)
Ventanas y puertas exteriores
PLAZO DE CONSTRUCCIÓN: HASTA 2 MESES

TERRA HOME
Proyectos populares y procesos de construcción estandarizados que permiten garantizar una calidad constante.
© Terra home 2024
Datos de la empresa
Código de la empresa: 302594280


