ACABADO COMPLETO

  • Trabajos de tierra bajo los cimientos

  • Cimientos (de pilotes o de losa)

  • Instalaciones completamente distribuidas en los cimientos

  • Paredes con aislamiento y acabado exterior (paneles compuestos, revestimiento de madera)

  • Estructura del techo (de chapa, de pizarra sin asbesto o tejas bituminosas)

  • Ventanas y puertas exteriores

  • Tabiques instalados y techos de yeso

  • Instalaciones completamente distribuidas en toda la casa

  • Bomba de calor instalada

  • Puertas interiores y alféizares instalados

  • Paredes y techos interiores de la casa pintados

  • Laminado especial para suelos calefactados colocado

  • Azulejos instalados en la cocina y áreas sanitarias

  • Lámparas, enchufes y interruptores instalados

  • Aparatos sanitarios instalados

PLAZO DE CONSTRUCCIÓN: DURACIÓN INDIVIDUALIZADA

ACABADO PARCIAL

  • Trabajos de tierra bajo los cimientos

  • Cimientos (prefabricados, de pilotes, de tiras o de losa)

  • Instalaciones completamente distribuidas en los cimientos

  • Paredes con aislamiento y acabado exterior (paneles compuestos, revestimiento de madera)

  • Estructura del techo (de chapa, de pizarra sin asbesto o tejas bituminosas)

  • Ventanas y puertas exteriores

  • Tabiques instalados y techos de yeso

  • Instalaciones completamente distribuidas en toda la casa

PLAZO DE CONSTRUCCIÓN: HASTA 3 MESES

CAJA DE LA CASA

  • Trabajos de tierra bajo los cimientos
    Cimientos (prefabricados o de pilotes)

  • Instalaciones completamente distribuidas en los cimientos

  • Paredes con aislamiento y acabado exterior (paneles compuestos, revestimiento de madera)

  • Estructura del techo (de chapa, de pizarra sin asbesto o tejas bituminosas)

  • Ventanas y puertas exteriores

PLAZO DE CONSTRUCCIÓN: HASTA 2 MESES

NAMO TIPAS #1

NAMO TIPAS #2

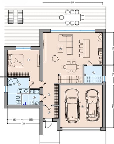
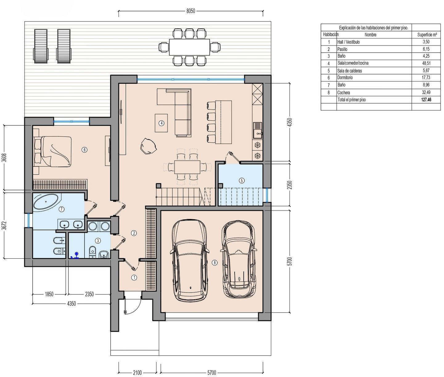
Kambariai : 3

Namo plotas: 70 m²

Energinė klasė: A++

NAMO TIPAS #1

Kambariai : 3

Namo plotas: 70 m²

Energinė klasė: A++

Kambariai : 3

Namo plotas: 70 m²

Energinė klasė: A++

NAMO TIPAS #1

NAMO TIPAS #2

Kambariai : 3

Namo plotas: 70 m²

Energinė klasė: A++

NAMO TIPAS #1

Kambariai : 3

Namo plotas: 70 m²

Energinė klasė: A++

Kambariai : 3

Namo plotas: 70 m²

Energinė klasė: A++