PILNA APDAILA

  • Žemės darbai po pamatais

  • Pamatai (poliniai, juostiniai arba plokštuminiai)

  • Pilnai pamate išvedžiotos komunikacijos

  • Sienos su apšiltinimu ir lauko apdaila (kompozitinės plokštės, medinės dailylentės, tinkas)

  • Stogo konstrukcija (skardinė, beasbestinio šiferio arba bituminių čerpių)

  • Langai ir lauko durys

  • Įrengtos pertvaros ir gipsinės lubos

  • Pilnai name išvedžiotos komunikacijos

  • Sumontuotas šilumos siurblys

  • Sumontuotas rekuperatorius

  • Sumontuotos vidaus durys ir palangės

  • Nudažytos namo vidinės sienos ir lubos

  • Paklotas specialus laminatas šildomoms grindims

  • Įšklijuotos plytelės virtuvėje ir sanitarinėse patalpose

  • Sumontuoti šviestuvai, rozetės ir jungikliai

  • Sumontuoti sanitariniai prietaisai

STATYBOS TERMINAS: INDIVIDUALI TRUKMĖ

DALINĖ APDAILA

  • Žemės darbai po pamatais

  • Pamatai (poliniai, juostiniai arba plokštuminiai)

  • Pilnai pamate išvedžiotos komunikacijos

  • Sienos su apšiltinimu ir lauko apdaila (kompozitinės plokštės, medinės dailylentės, tinkas)

  • Stogo konstrukcija (skardinė, beasbestinio šiferio arba bituminių čerpių)

  • Langai ir lauko durys

  • Įrengtos pertvaros ir gipsinės lubos

  • Pilnai name išvedžiotos komunikacijos

STATYBOS TERMINAS: IKI 3 MėnesiŲ

NAMO "DEŽUTĖ"

  • Žemės darbai po pamatais

  • Pamatai (poliniai, juostiniai arba plokštuminiai)

  • Pilnai pamate išvedžiotos komunikacijos

  • Sienos su apšiltinimu ir lauko apdaila (kompozitinės plokštės, medinės dailylentės, tinkas)

  • Stogo konstrukcija (skardinė, beasbestinio šiferio arba bituminių čerpių)

  • Langai ir lauko durys

STATYBOS TERMINAS: IKI 2 MėnesiŲ

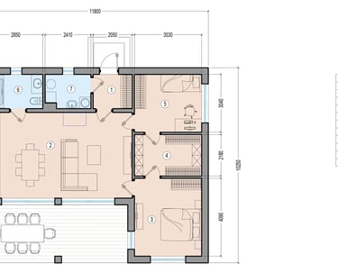
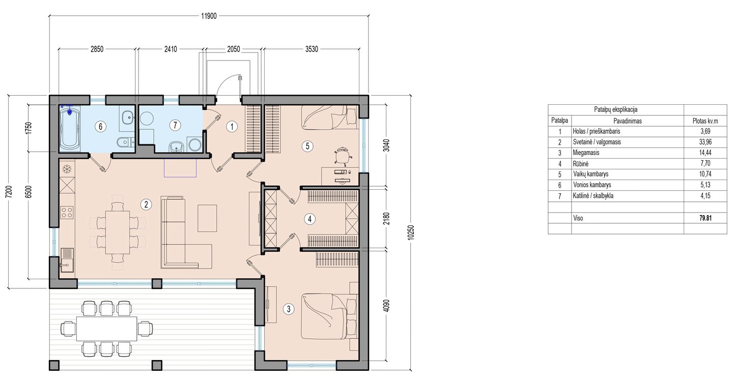
NAMO TIPAS #1

NAMO TIPAS #2

Kambariai : 3

Namo plotas: 70 m²

Energinė klasė: A++

NAMO TIPAS #1

Kambariai : 3

Namo plotas: 70 m²

Energinė klasė: A++

Kambariai : 3

Namo plotas: 70 m²

Energinė klasė: A++

NAMO TIPAS #1

NAMO TIPAS #2

Kambariai : 3

Namo plotas: 70 m²

Energinė klasė: A++

NAMO TIPAS #1

Kambariai : 3

Namo plotas: 70 m²

Energinė klasė: A++

Kambariai : 3

Namo plotas: 70 m²

Energinė klasė: A++