


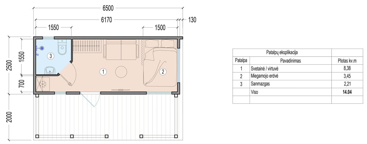
NAMO TIPAS #1
NAMO TIPAS #2
Kambariai : 3
Namo plotas: 70 m²
Energinė klasė: A++




NAMO TIPAS #1
Kambariai : 3
Namo plotas: 70 m²
Energinė klasė: A++
Kambariai : 3
Namo plotas: 70 m²
Energinė klasė: A++


NAMO TIPAS #1
NAMO TIPAS #2
Kambariai : 3
Namo plotas: 70 m²
Energinė klasė: A++




NAMO TIPAS #1
Kambariai : 3
Namo plotas: 70 m²
Energinė klasė: A++
Kambariai : 3
Namo plotas: 70 m²
Energinė klasė: A++










